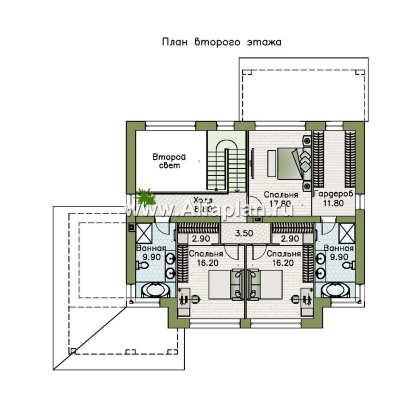
979A-S «Серебряный луч» - проект двухэтажного дома, планировка две спальни на 1эт и второй свет в гостиной, в современном стиле

Автор проекта: В. Тарасов
  • Общая площадь дома:254 м²
Стоимость проекта:
  • Архитектурно-строительные чертежи (АС)    57 500 ₽
  • Внутренние инженерные системы (ИС) отопление, водопровод, канализация, электрооборудование    По дог.
  • Строительный паспорт проекта    3 500 ₽
  • Разбивочный план вашего участка    6 000 ₽
  • Дополнительная копия проекта    4 000 ₽
Стоимость, дополнительные опции только для проектов Тарасова В.А.:
  • Электронная копия в формате PDF     5 000 ₽
  • Корректировка Паспорта проекта
    (в зависимости от пожеланий)   
    По дог.
  • Корректировка конструкций дома
    (в зависимости от пожеланий)   
    По дог.
  • Разработать установку скрытых алюминиевых роллет (опция, отдельный альбом)    1 ₽
Заказать проектПоложить в мои желания
Спасибо за обращение к нам, в ближайшее время мы вам ответим

Строить легче с проектом от  "АЛЬФАПЛАН" потому, что у нас подробные строительные чертежи.  Смотрите ВИДЕО, читайте на странице  Состав проекта дома.

Готовые проекты: 1. не предназначены для строительства в СЕЙСМИЧЕСКИ АКТИВНЫХ РАЙОНАХ, а фундаменты - в условиях ВЕЧНОЙ МЕРЗЛОТЫ, 2. проекты домов требуют Привязки к конкретному участку строительства (внизу страницы).

.

Общая площадь дома 254 м²

«Серебряный луч» - проект двухэтажного дома, планировка две спальни на 1эт и второй свет в гостиной, в современном стиле - технические характеристики

Тип фундамента монолитная ж/б плита
Тип наружных стен газо(пено)бетонные блоки (возможен кирпич)
Тип внутренних несущих стен керамический кирпич
Тип перекрытий из монолитного железобетона
Тип кровли битумная черепица, возможна металлочерепица
Наружная отделка стен декоративная штукатурка
Наружная отделка цоколя отделочный камень
Габаритные размеры дома 16.90 х 15.90 16.9 м x 15.9 м
Высота дома от уровня пола 1 эт 9.6 м
Высота 1-го этажа от пола до потолка 3 м
Высота 2-го этажа от пола до потолка 2.75 м
Ширина 16.9 м
Длина 15.9 м
Утеплитель минеральная вата
Материал окон из ПВХ профилей/Защитные роллеты ALUTECH (реклама: ООО "Алютех-М")

Описание проекта

«Серебряный луч» - проект двухэтажного дома, планировка две спальни на 1эт и второй свет в гостиной, в современном стиле

Сервис для заказчиков

  • Сервис
    для заказчиков

    Внесение изменений в проекты

    Подробнее
  • Корректировка
    конструкций

    Изменение фундамента, перекрытий, теплые полы

    Подробнее
  • Планировка
    участка

    Разбивочный план, благоустройство, озеленение

    Подробнее
  • Индивидуальное
    проектирование

    Разработка проекта по заданию Закачика

    Подробнее
  • Индивидуальный
    фасад

    Корректировка фасада по желаниям заказчика

    Подробнее

Комментарии 0

Об этом проекте ещё никто не писал.
Задай вопрос или поделись своим мнением!
Нам не всё равно

Добавить комментарий
Добавление комментария