244P Проект гаража с мастерской и погребом

Автор проекта: В. Тарасов
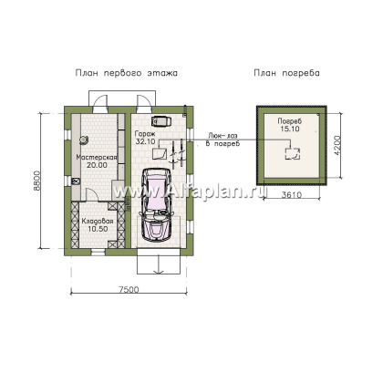
  • Общая площадь дома:62.2 м²
Стоимость проекта:
  • Архитектурно-строительные чертежи (АС)    15 700 ₽
  • Внутренние инженерные системы (ИС) отопление, водопровод, канализация, электрооборудование    По дог.
  • Строительный паспорт проекта    3 500 ₽
  • Разбивочный план вашего участка    6 000 ₽
  • Дополнительная копия проекта    1 000 ₽
Стоимость, дополнительные опции только для проектов Тарасова В.А.:
  • Электронная копия в формате PDF     5 000 ₽
  • Корректировка Паспорта проекта
    (в зависимости от пожеланий)   
    По дог.
  • Корректировка конструкций дома
    (в зависимости от пожеланий)   
    По дог.
  • Разработать установку скрытых алюминиевых роллет (опция, отдельный альбом)    1 ₽
Заказать проектПоложить в мои желания
Спасибо за обращение к нам, в ближайшее время мы вам ответим

Строить легче с проектом от  "АЛЬФАПЛАН" потому, что у нас подробные строительные чертежи.

Готовые проекты: 1. не предназначены для строительства в СЕЙСМИЧЕСКИ АКТИВНЫХ РАЙОНАХ, а фундаменты - в условиях ВЕЧНОЙ МЕРЗЛОТЫ, 2. проекты домов требуют Привязки к конкретному участку строительства (внизу страницы).

.

Общая площадь дома 62.2 м²
Площадь гаража 32.1 м²
Общая площадь дома, без гаража 30.5 м²

Проект гаража с мастерской и погребом - технические характеристики

Тип фундамента монолиная ж/б плитв
Тип кровли битумная ил металлическая черепица
Наружная отделка стен декоративная штукатурка
Наружная отделка цоколя облицовочный камень
Гараж Гараж/Гаражные ворота ALUTECH (реклама: ООО "Алютех-М")
Габаритные размеры дома 8.50 х 9.80 8.5 м x 9.8 м
Высота дома от пола 1-го этажа 4.95 м
Высота 2-го этажа от пола 1-го этажа, в гараже - под стропила 2.6 м
Ширина 8.5 м
Длина 9.8 м
Утеплитель минеральная вата
Материал окон из ПВХ профилей/Защитные роллеты ALUTECH (реклама: ООО "Алютех-М")

Описание проекта

Проект гаража с мастерской и погребом

Сервис для заказчиков

  • Сервис
    для заказчиков

    Внесение изменений в проекты

    Подробнее
  • Корректировка
    конструкций

    Изменение фундамента, перекрытий, теплые полы

    Подробнее
  • Планировка
    участка

    Разбивочный план, благоустройство, озеленение

    Подробнее
  • Индивидуальное
    проектирование

    Разработка проекта по заданию Закачика

    Подробнее
  • Индивидуальный
    фасад

    Корректировка фасада по желаниям заказчика

    Подробнее

Комментарии 0

Об этом проекте ещё никто не писал.
Задай вопрос или поделись своим мнением!
Нам не всё равно

Добавить комментарий
Добавление комментария